Venta y Alquiler en Antonio Maura - Jeronimos
Jerónimos
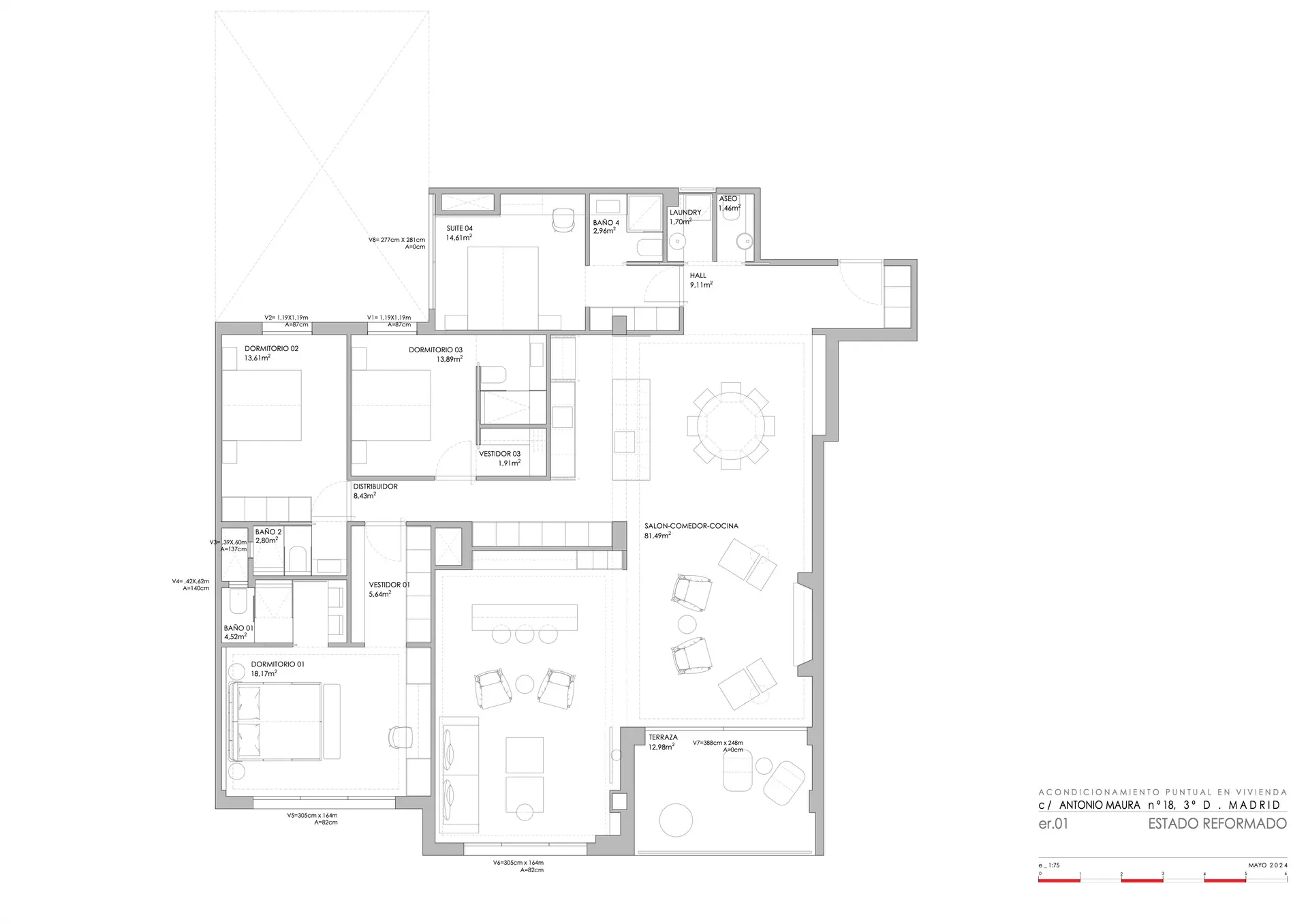
En un moderno edificio del emblemático barrio de Jerónimos, esta vivienda luminosa ocupa la tercera planta y cuenta con una agradable terraza que mira a la calle Méndez Núñez. Reformada y amueblada con un gusto impecable, ofrece una extensa zona social con cocina abierta y salón-comedor que se funden con el exterior. Un aseo de invitados y los dormitorios en suite brindan privacidad y comodidad a partes iguales. Su ubicación privilegiada permite disfrutar de un entorno tranquilo y elegante, a la vez que está a un paso de los lugares más icónicos de Madrid.
Precio
4.750.000€
M² 281
Dormitorios 4
Baño 4
Aseos 1
Reformado
Calefacción
Parking
Amueblado
Portero
AC
Ascensor

